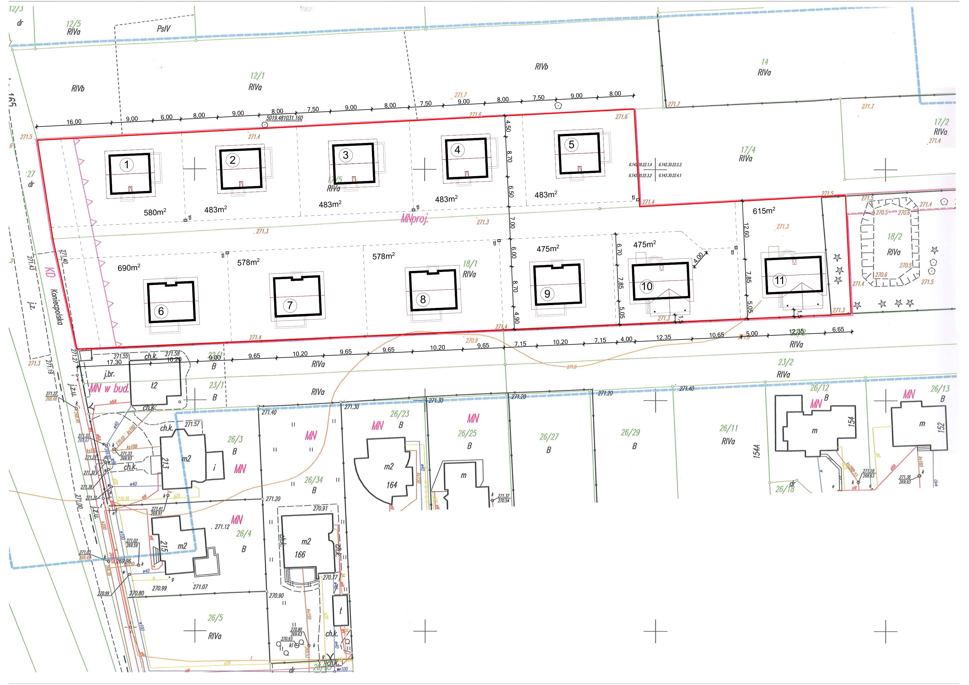
Działka budowlana dom z Garażem (osiedle) Koniecpolska nr.: 8

Częstochowa / Lisiniec / 375 000 PLN /130,5m2 / 900 m2/2875 PLN/m2
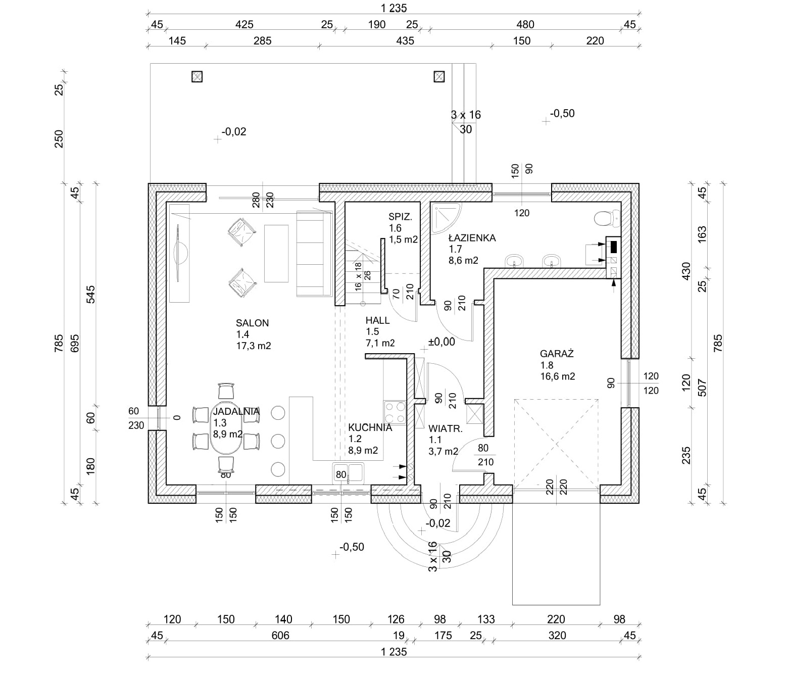
- Opis: Dom z działką .
- Typ nieruchomości: działka budowlana plus dom jednorodzinny
- Miasto: Częstochowa
- Dzielnica: Lisiniec
- Ulica: Wewnętrzna(wszystkie media w drodze)
- Powierzchnia : działki 552 m2 domu 130,5 m2
- Cena sprzedaży: 375 000 PLN
- Wymiary: prostokąt 24,4x40
- Dom w pojedyńczej zabudowie Osiedle 3 domy
- Garaż w bryle budynku /lub dodatkowy pokój
